top of page
Nouveaux logements ouverts à la location dès JUILLET 2024
Wifi haute vitesse
Thermopompe
Chiens & chats acceptés
(sous certaines conditions)

La nature à votre porte
Actualités construction
La construction va bon train et les loyers seront disponibles en Juillet 2024.
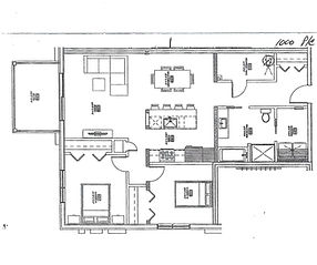
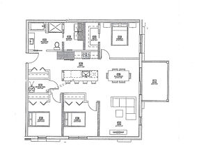
Il nous reste présentement des 4 et demi disponibles. Les prix varient de $1700 a $1900 selon la superficie et l'étage. Un stationnement, internet et une thermopompe sont inclus à ces prix.

Croquis Cuisine et Ilot

Croquis Cuisine et Ilot

3 étages complétés février 24

Croquis Cuisine et Ilot
1/9
Nos 4 1/2 à venir
Notre 5 1/2 à venir
bottom of page






